Resumen
- Actualizado el:
- enero 24, 2026
- Categoría
- Apartamento
- 3 Dormitorios
- 2 Baños
- 90 m2
- Identificación de la propiedad
- 46428
Descripción
CGI Inmobiliaria presenta esta amplia vivienda para reformar, ideal para diseñar la casa que siempre has soñado, situada en pleno centro de Guardamar del Segura.
Ubicada a tan solo 700 metros de la Playa Centro, esta propiedad goza de una localización inmejorable, rodeada de todos los servicios necesarios para el día a día: a 350 metros del Ayuntamiento y Carrefour Express, a 170 metros de Farmacia Mora y a escasos pasos de la Avenida de los Pinos y el Parque Reina Sofía, una de las zonas verdes más emblemáticas de la localidad, con una variada oferta de restauración y ocio.
La vivienda se sitúa en una cuarta planta con ascensor, dentro de un edificio tranquilo que cuenta con una única vivienda por planta, lo que garantiza privacidad y comodidad. Gracias a su orientación este-oeste, disfruta de una excelente ventilación cruzada y de una gran luminosidad durante todo el día.
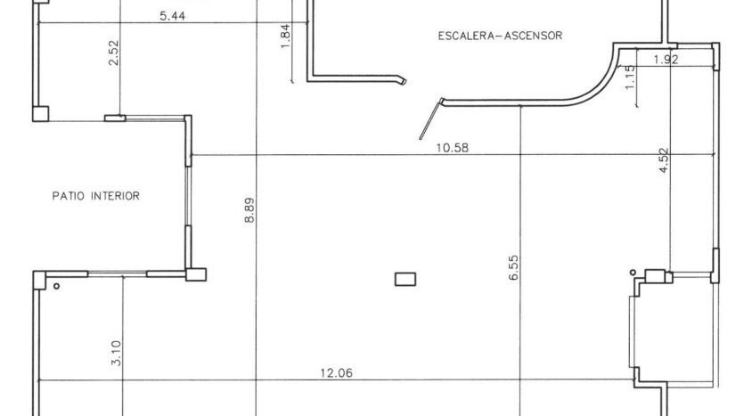
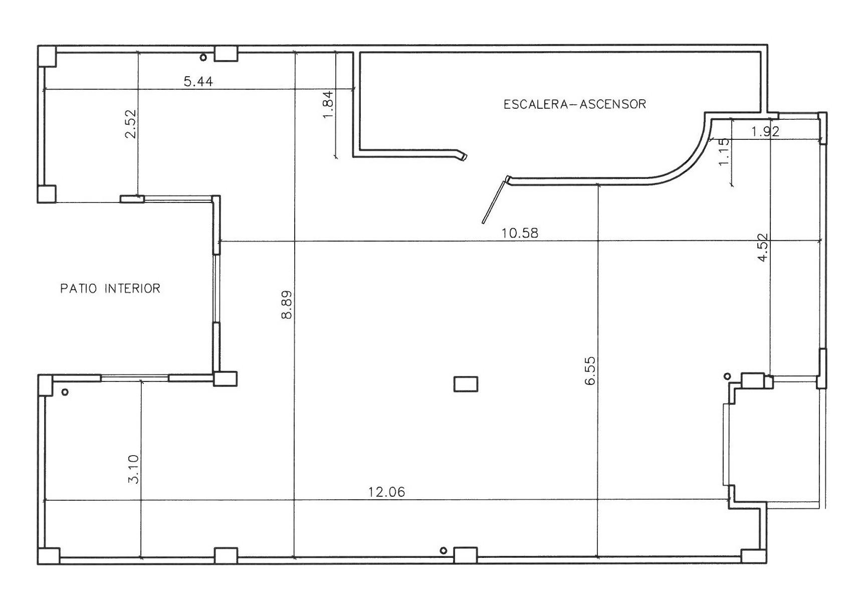
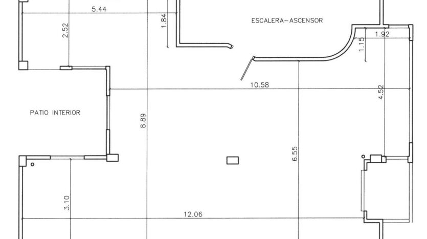
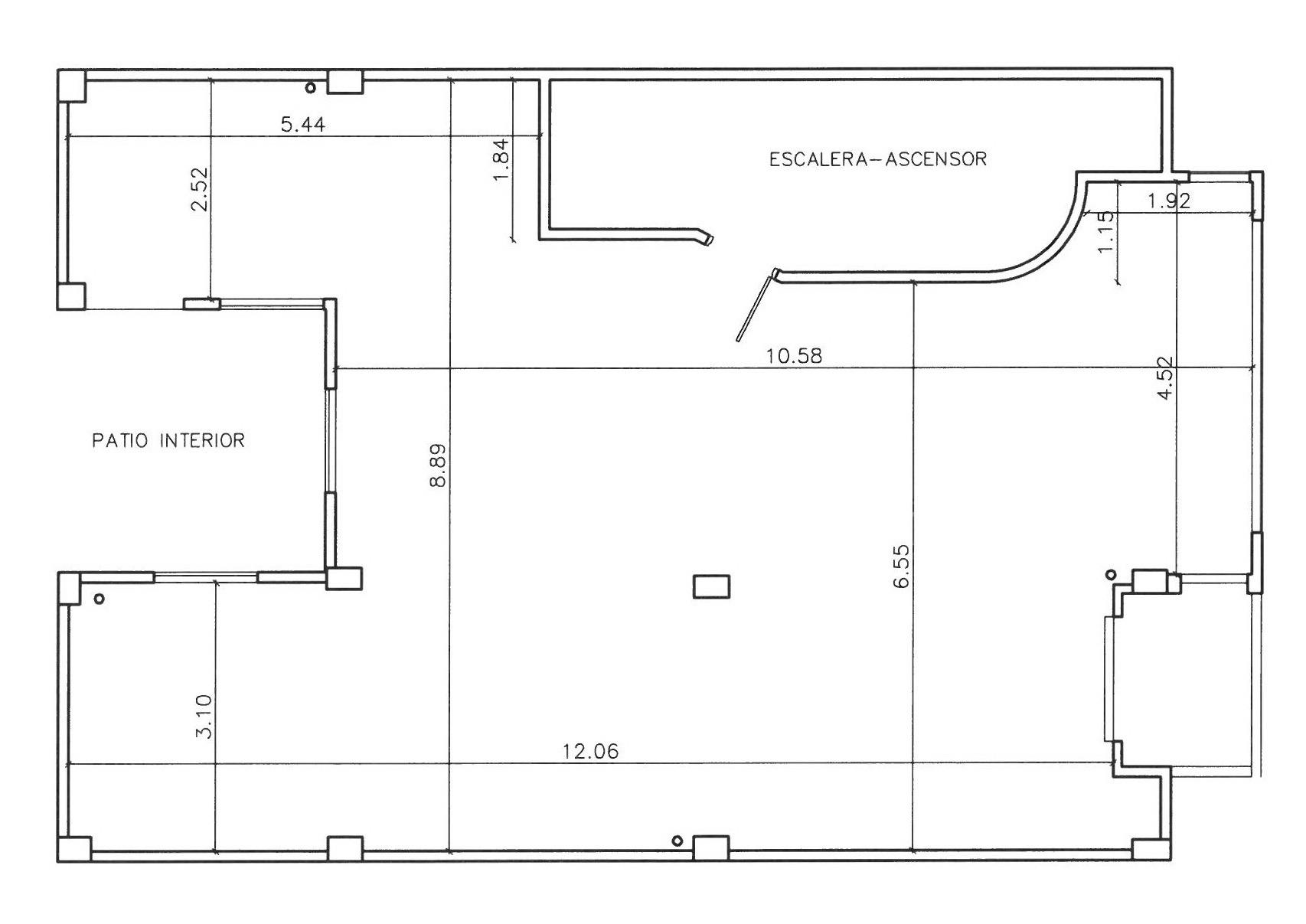
Dispone de 90 m² construidos, ofreciendo múltiples posibilidades de redistribución y reforma para adaptarla completamente a tus necesidades y estilo personal. Una oportunidad perfecta tanto como vivienda habitual, segunda residencia o inversión en una de las zonas más demandadas de Guardamar del Segura.
¡Visite la vivienda sin compromiso!























