Resumen
- Actualizado el:
- diciembre 4, 2025
- Categoría
- Apartamento
- 4 Dormitorios
- 3 Baños
- 138 m2
- Identificación de la propiedad
- 33918
Descripción
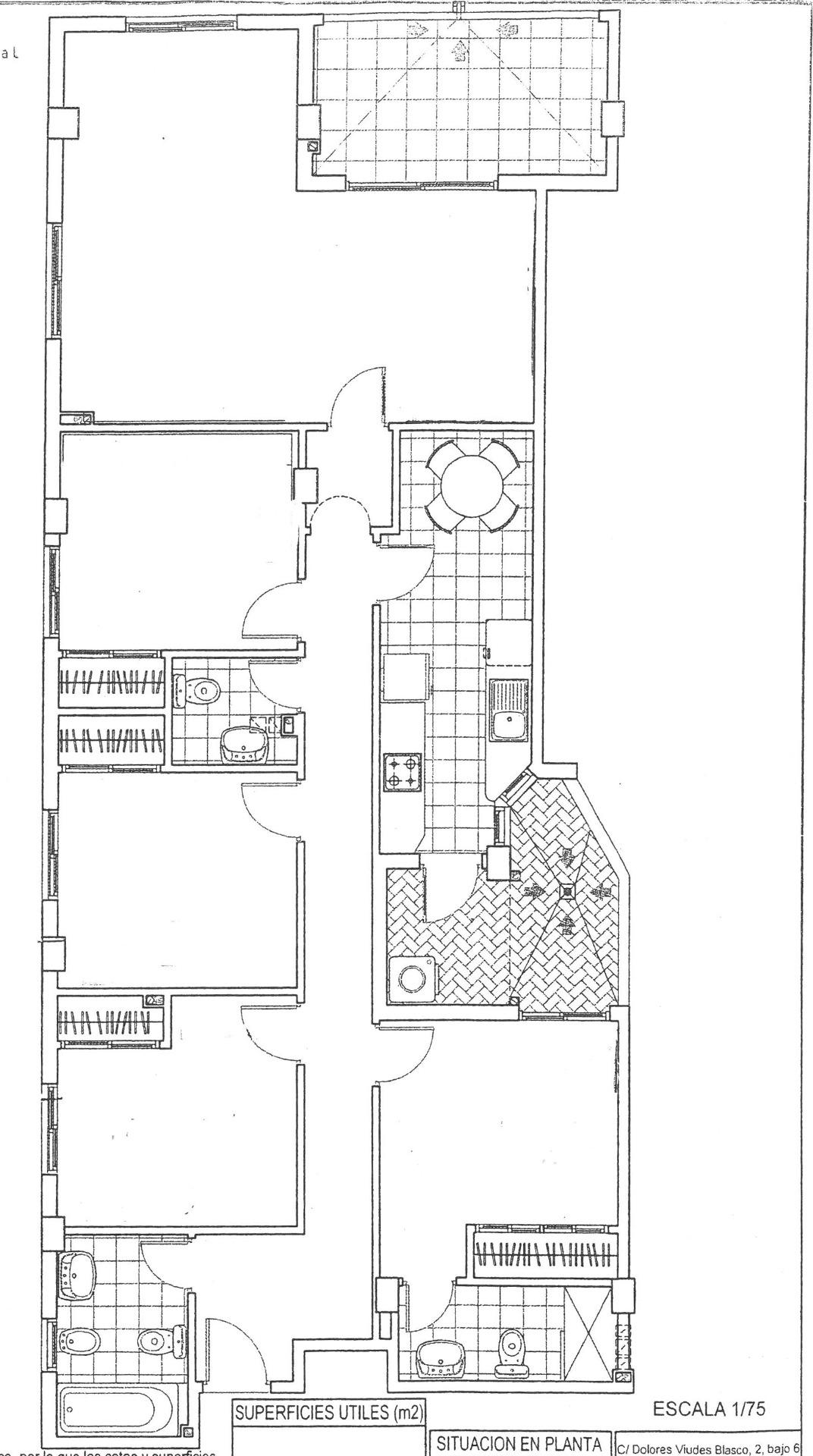
La Inmobiliaria CGI ofrece este magnífico apartamento situado en una de las zonas más destacadas de Guardamar del Segura, a escasos 300 metros de la playa y con vistas a la Avenida Cervantes.
La vivienda, ubicada en una primera planta con ascensor, incluye plaza de garaje subterránea y trastero en la terraza comunitaria.
Con una superficie de 135 m², el apartamento se distribuye de la siguiente manera:
Espacioso salón-comedor completamente amueblado, que da acceso a una terraza acristalada con cortinas de cristal, ofreciendo agradables vistas al paseo de la avenida de Cervantes.
Cocina independiente equipada con electrodomésticos, que cuenta con galería y patio interior.
Cuatro amplios dormitorios, todos con armarios empotrados y camas dobles. El dormitorio principal dispone de baño en suite y acceso al patio interior.
Dos baños completos equipados con lavabo, además de un aseo adicional con lavabo e inodoro.
La propiedad destaca por sus acabados de alta calidad, ventanas de climalit y sistema de aire acondicionado por conductos frío/calor en todas las estancias.
Esta es una oportunidad excepcional para quienes buscan una vivienda amplia y confortable en una ubicación privilegiada, cercana al mar y con acceso a todos los servicios que ofrece Guardamar del Segura, incluyendo restaurantes, zonas de ocio, supermercados, colegios y centros médicos.
No pierdas la oportunidad de residir en este encantador lugar y disfrutar de una vida tranquila y cómoda a solo unos pasos de la playa.
¡Contáctanos y ven a visitarla!































